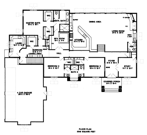
Aurora Model Home
Available with three elevations to pick from. This uniqly styled contemporary split ranch has been designed for the open-minded individual that likes large open space planning. This home brings to life the type of construction that today's engineered building materials allow for along with warm, practical and comfortable features everyone wants. Approximately 3316 sq. ft.
At Zach Builders all plans can be modified to meet your needs including Exteriors, Removing or Adding rooms, Square Footage or an Entire Level.
