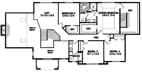
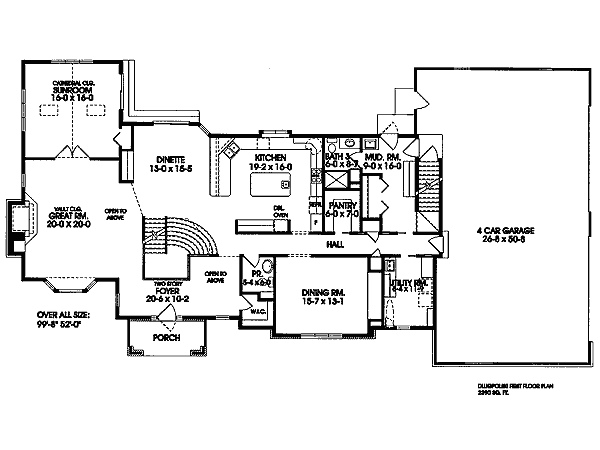
Aberdeen Model Home
Impressive curb appeal with a subtle feeling of comfort inside has been incorporated in this home. Four bedrooms and loft to the great room, a sneak stair to the master bedroom, very large kitchen and mud room, 4 car garage and beautiful spa room make the Aberdeen a home with the family in mind.
At Zach Builders all plans can be modified to meet your needs including Exteriors, Removing or Adding rooms, Square Footage or an Entire Level.

