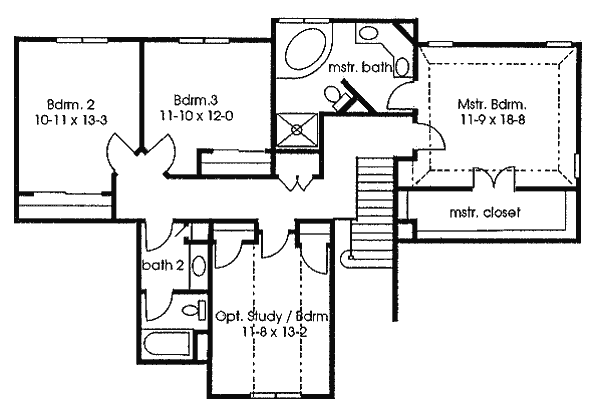
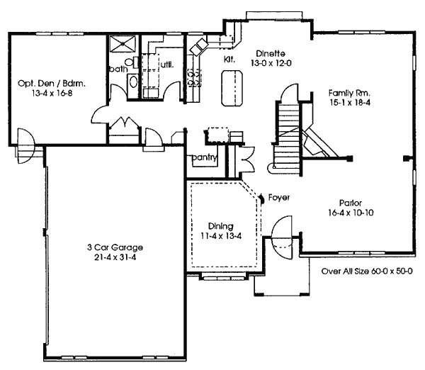
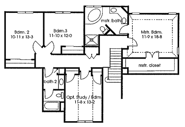
Bradley Model Home
This quality built 2750 sq. ft. home offers 4 bedrooms and a first floor office/den or 5th bedroom. The first floor includes a full bath adjacent to the den, formal dining room with a stepped ceiling, formal living room with transom windows, and adjacent family room featuring a corner fireplace and entertainment center. The second floor master bedroom suite has a luxurious bath with whirlpool tub. Other features include six panel doors, brick and wood siding and a large 3 car garage.
At Zach Builders all plans can be modified to meet your needs including Exteriors, Removing or Adding rooms, Square Footage or an Entire Level.

