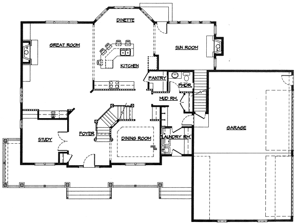
Oakridge Model Home
With an impressive 4,300 square feet The Oakridge home unites functional design with high quality amenities and will excite even the most selective buyers. This beautiful home has a very open feel, but still allows privacy with a separate sun room and two story great room. Well-designed gourmet kitchen, conveniently located laundry/utility and mud rooms off a 4 car garage, a second stairway from the sunroom to a second story loft along with the many other unique features, combine to create a true family retreat.
At Zach Builders all plans can be modified to meet your needs including Exteriors, Removing or Adding rooms, Square Footage or an Entire Level.

