Prairie II Model Home

Prairie II Model Home

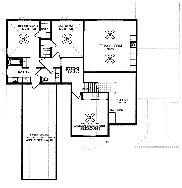
Floor Plans

click to enlarge

First Floor

Second Floor

Basement Floor
The Prarie II comes in versions from 2440 to 3000 sq. ft.

At Zach Builders all plans can be modified to meet your needs including Exteriors, Removing or Adding rooms, Square Footage or an Entire Level.

Click here to get more information about this home