Prescott II Model Home

Prescott II Model Home

Floor Plans

click to enlarge

First Floor

Second Floor

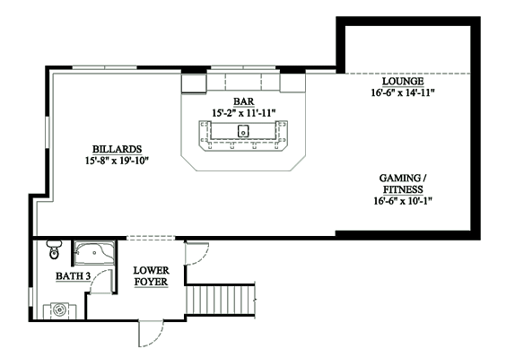
Basement Floor

Gallery

At Zach Builders all plans can be modified to meet your needs including Exteriors, Removing or Adding rooms, Square Footage or an Entire Level.

Click here to get more information about this home