Cascade Model Home
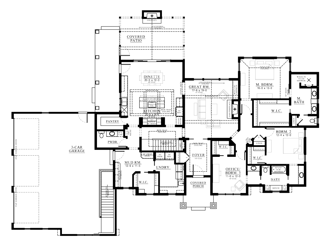
This lovely home has around a total of 3907 sq. feet which includes 2645 sq. feet on the main level and 1262 sq. feet on the lower level. Highlights include a covered patio, 3-car garage, mudroom, pantry as well as spacious master en suite with a walk-in tiled shower.
At Zach Builders all plans can be modified to meet your needs including Exteriors, Removing or Adding rooms, Square Footage or an Entire Level.
