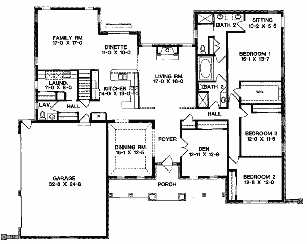
Monterey Model Home
A ranch home with a living room, family room, and 3 bedrooms is not something you see everyday. With warm arches on the front entry, this all brick home has been designed to accommodate a formal appearance while allowing for a family atmosphere.
At Zach Builders all plans can be modified to meet your needs including Exteriors, Removing or Adding rooms, Square Footage or an Entire Level.
