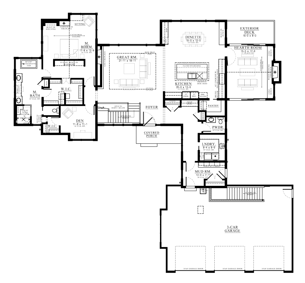
Morgan Model Home
At a total of approximately 4590 sq. feet, the Morgan has a spacious interior. The main level has 2905 sq. feet while the lower comes in at 1685 sq. feet. Highlights include a hearth room, exterior deck, large great room, walk in closets and wood burning fireplace.
At Zach Builders all plans can be modified to meet your needs including Exteriors, Removing or Adding rooms, Square Footage or an Entire Level.
