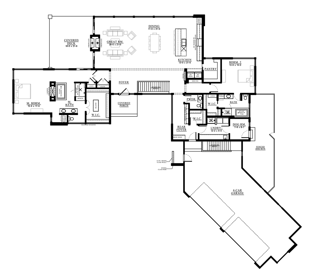
Oxford Model Home
The Oxford Model boasts a nice 5434 sq. feet with a large main level at 3231 sq. feet and lower level of 2203 sq. feet. Plenty of room for vehicles with a 4-car garage, covered patio, and long great room with dining, kitchen and shared fireplace with the patio.
At Zach Builders all plans can be modified to meet your needs including Exteriors, Removing or Adding rooms, Square Footage or an Entire Level.
