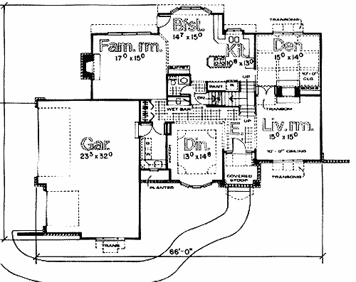
Lexington Model Home
Built for today's family this 4-bedroom 3-1/2 bath home meets anyone's busy lifestyle. The first floor of the Lexington will astonish you with it's 2 fireplaces, formal dining room, living room, private den, family room and gourmet kitchen, featuring beautiful acoustical drywall finishes. The upstairs offers 4 large bedrooms and 3 baths to help keep the family of today moving.
At Zach Builders all plans can be modified to meet your needs including Exteriors, Removing or Adding rooms, Square Footage or an Entire Level.

